Oppdrag Gjenoppbygging etter brann

Oppdrags­giver Rennebu kommune

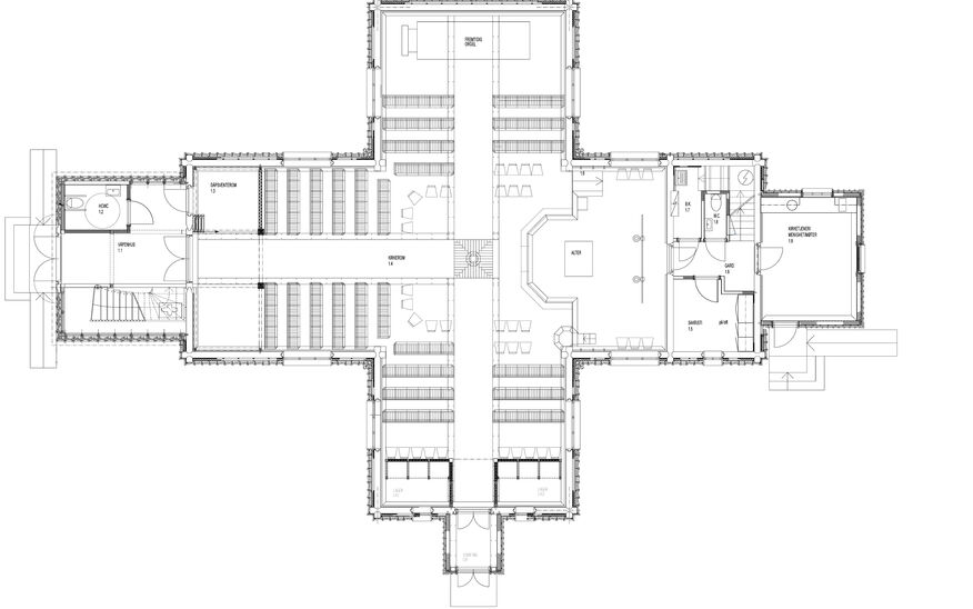
Sted Innset, Rennebu

Status Ferdigstilt 2000

Foto Kvernaas Arkitekter AS / Dagfinn Vold

​Gamle Innset kirke fra 1642 brant ned høsten 1995. Den nye kirken har samme grunnform som den gamle og er i hovedsak gjenreist i samme form og tømmerkonstruksjon som den opprinnelige.

Ny liturgi og bruk av kirkerommet, samt krav til tilgjengelighet bidro til en tidsmessig fornyelse av disponering og innredning. Døpefont og altertavle er kopi av de opprinnelige.

Håkon Bleken og Håkon Gullvåg har samarbeidet om den kunstneriske utformingen - i benkegavlene, prekestolen, orgel og gallerifronten.