Nytt tilbygg med inngang og trapp

Nytt tilbygg med inngang og trapp

Oversiktsbilde

Oversiktsbilde

Utsnitt av kjøkkenet sett fra tilbygget

Utsnitt av kjøkkenet sett fra tilbygget

Trapp opp til huset før ombygging

Trapp opp til huset før ombygging

Inngangsparti før ombygging

Inngangsparti før ombygging

1.etasje før ombygging

1.etasje før ombygging

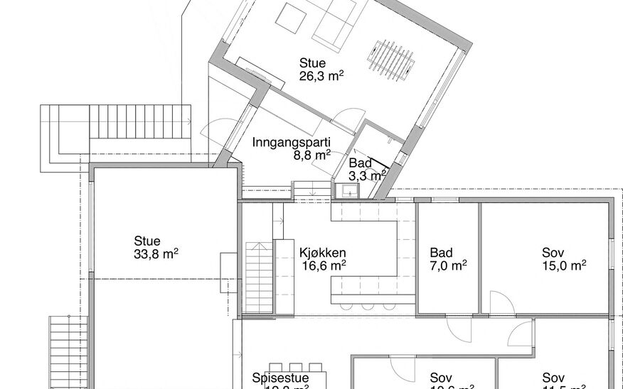
1.etasje etter ombygging

1.etasje etter ombygging

Snitt gjennom bygget etter ombygging

Snitt gjennom bygget etter ombygging

Ole Bulls vei 7 er en enebolig fra 1960. Beboerne hadde behov for mer plass og en bedre planløsning. Vi løste dette ved å plassere et tilbygg på nordfasaden i tilknytning til inngangspartiet og rive vegger innvendig for å få en mer åpen planløsning.

Tilbygget legger seg godt ned i terrenget for å redusere trappetrinn utendørs, ta hensyn til naboer og få god kontakt med utearealene. Volumet har samme farge som dagens bolig, men er kledd med et stående og smalt panel. Fasaden mot nordvest brytes opp med et innhakk som gir et overdekket inngangsparti i en varm fargetone. Selv om tilbygget er moderne med flatt tak, bygger det likevel på elementer fra den opprinnelige eneboligen.

Tilbygget gir en ekstra stue og et ekstra bad til boligen. Stuen har god takhøyde og er gjennomgående med vinduer mot nordvest og sørøst. Inngangspartiet er flyttet inn i tilbygget slik at kjøkkenet kan utvides. Kjøkkenet åpnes samtidig opp mot spisestuen og har fått et lyst og luftig preg. Da tilbygget er lagt godt ned i terreng, er det en nivåforskjell mellom tilbygget og den opprinnelige 1.etasjen, noe som gir en fin soneinndeling mellom kjøkkenet og inngangspartiet.