Oppdrag Enebolig

Oppdrags­giver Privat

Sted Svartskog, Oppegård

Status Ferdigstilt 2007

Areal 245 m² BRA

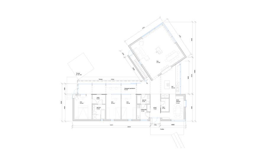
Boligen ligger i en vestvendt skråning mot Bunnefjorden med utsikt til Holmenkollen. Bebyggelsen er sammensatt av to volumer. Den ene fløyen har soverom og glassgang mot en stor terrasse, mens det andre volumet over to etasjer er vridd og inneholder stue og arbeidsrom. Det kvadratiske stuevolumet løfter seg i det skrånende terrenget og vridningen er svar på siktretning mot Oslo. Arkitekturen spiller på åpen/lukket fasade med en mer lukket østside og en mer åpen fremside mot utsikten i vest med mye glass. Inngangssiden er lav med et klart definert takløft som inngang. Det sammensatte uttrykket avgrenser uteplassene og gjør at bebyggelsen oppleves forskjellig fra ulike sider.