Vindusflater mot syd i ny etasje

Vindusflater mot syd i ny etasje

Tidligere situasjon

Tidligere situasjon

Ny situasjon

Ny situasjon

Tidligere situasjon

Tidligere situasjon

Ny etasje

Ny etasje

Ny situasjon

Ny situasjon

Tidligere situasjon

Tidligere situasjon

Tidligere fasader

Tidligere fasader

Fasade nord og vest

Fasade nord og vest

Fasade sør og øst

Fasade sør og øst

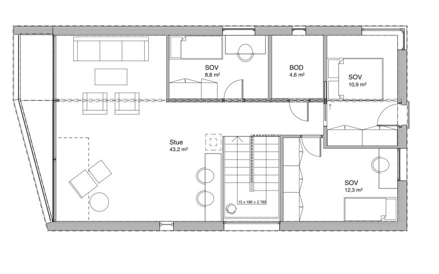
Plan 1

Plan 1

Plan 2

Plan 2

Plan 3

Plan 3

Oppdrag Påbygg/ombygging

Oppdrags­giver Privat

Sted Oppegård

Status Ferdigstilt 2020

Sætreskogveien har fått nytt påbygg, og er ombygget og modernisert både innvendig og utvendig. Eneboligen får mer utbytte av utsikten mot syd med et nytt påbygg som har gitt bygget en ny etasje og et fornyet og mer dynamisk formuttrykk. Den tidligere garasjen er bruksendret til soverom og bad, og det er oppført ny garasje og carport, løsrevet fra boligen.

Bilder viser eksisterende og ny situasjon.

Entreprenør og fotograf av ferdig bygg: Brødrene Hammerstad v/ Lars Støttum.